◎ 廣東省知名商標 ◎ 國家建筑裝飾工程設計專項甲級 ◎ 建筑裝修裝飾工程專業承包壹級
歡迎訪問星藝裝飾南寧公司官網







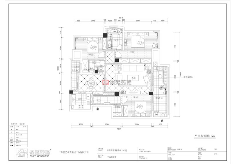
80后媽媽裝130平美式溫馨家。業主夢想中的應該是這樣的,坐在獨立的吧臺上,在一個寧靜的午后,自己和愛人細細磨上一杯咖啡,聽著悠揚的音樂,夫妻倆看著孩子在沙發上懶懶睡去。偶爾興致勃發還能捧起一本時尚雜志,了解最新流行趨勢。這就是80后媽媽渴望在快節奏工作之余屬于自己的休息空間。
海華東盟公館130平裝修案例
金源一品97平裝修案例
榮和大地179平裝修案例
教育路3號單位房125平裝修案例
龍光玖瓏湖200平裝修案例
鳴翠谷300平裝修案例
招商境界215平裝修案例
合景天峻300平裝修案例
廣源大都會190平裝修案例
提交信息,試看
| 請輸入您的稱呼 |
| 請輸入您的手機號碼 |
| 請輸入您的樓盤名稱 |
為您提供小區戶型裝修效果圖參考!
人氣:11117