◎ 廣東省知名商標 ◎ 國家建筑裝飾工程設計專項甲級 ◎ 建筑裝修裝飾工程專業承包壹級
歡迎訪問星藝裝飾南寧公司官網







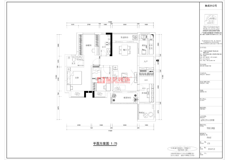
嘉和城溫莎北郡89平簡約美式裝修設計案例
設計說明:
美式簡約裝修風格,整體給人一種簡約大氣的氣息,沒有反復的空間布局,每處都格外的干凈利落,而且現代實用。無論是房頂的吊燈,還是腳下的地板,沒有瑣碎多余的設計,表面光滑柔和,讓人感覺溫暖而舒適。客廳作為待客區域,一般要求簡潔明快,同時裝修較其它空間要更明快光鮮,書房簡單實用。美式家居的臥室布置較為溫馨,作為主人的私密空間,主要以功能性和實用舒適為考慮的重點。
金源一品97平裝修案例
榮和大地179平裝修案例
教育路3號單位房125平裝修案例
龍光玖瓏湖200平裝修案例
鳴翠谷300平裝修案例
招商境界215平裝修案例
合景天峻300平裝修案例
廣源大都會190平裝修案例
提交信息,試看
人氣:11084
請必須填寫正確信息,以便我們更好的為您服務!