◎ 廣東省知名商標 ◎ 國家建筑裝飾工程設計專項甲級 ◎ 建筑裝修裝飾工程專業承包壹級
歡迎訪問星藝裝飾南寧公司官網



















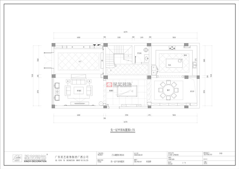
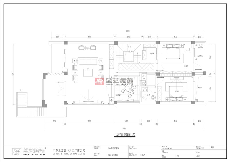
本案由于地勢的問題,一樓沒有光線,考慮到采光問題,把一樓與二樓的廚房位置的樓板打掉,通過二樓的陽臺采光借助到一樓,使整個空間采光通風得到保證,二樓客廳上三樓的樓梯改位,也是做的比較大膽的,這個空間在設計過程中,以采光以及流線走動為原則,改動布局
江山麓府別墅460平裝修案例
金源一品97平裝修案例
榮和大地179平裝修案例
教育路3號單位房125平裝修案例
龍光玖瓏湖200平裝修案例
鳴翠谷300平裝修案例
招商境界215平裝修案例
合景天峻300平裝修案例
廣源大都會190平裝修案例
提交信息,試看
人氣:11114
請必須填寫正確信息,以便我們更好的為您服務!