◎ 廣東省知名商標 ◎ 國家建筑裝飾工程設計專項甲級 ◎ 建筑裝修裝飾工程專業承包壹級
歡迎訪問星藝裝飾南寧公司官網






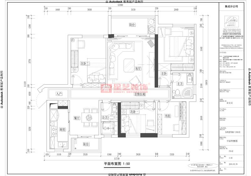
保利愛琴海105平簡歐風格設計賞析:溫暖的木質感打破整體灰調的冰冷,奠定空間沉穩質感的氛圍,配以簡單的花紋和色彩,讓整個空間隨意而自然,輕松自在
金源一品97平裝修案例
榮和大地179平裝修案例
教育路3號單位房125平裝修案例
龍光玖瓏湖200平裝修案例
鳴翠谷300平裝修案例
招商境界215平裝修案例
合景天峻300平裝修案例
廣源大都會190平裝修案例
提交信息,試看
人氣:11094
請必須填寫正確信息,以便我們更好的為您服務!