◎ 廣東省知名商標 ◎ 國家建筑裝飾工程設計專項甲級 ◎ 建筑裝修裝飾工程專業承包壹級
歡迎訪問星藝裝飾南寧公司官網




小區名稱:盛科城
工程監理:周和香
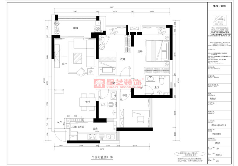
設計風格:中式
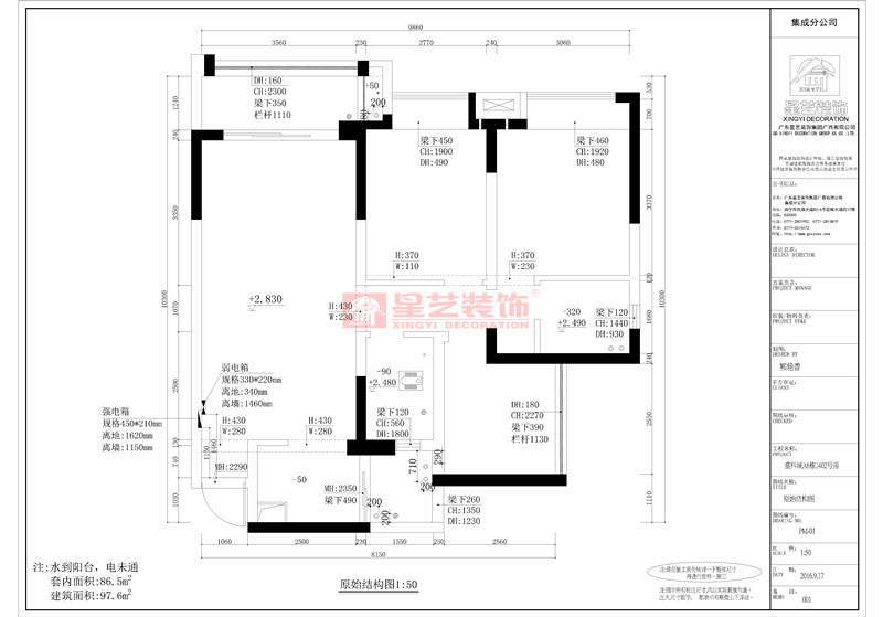
面積:98平
主要用材:黑鈦金,香杉木,中式花格
設計說明:功能性是小戶型需求的首位,電視墻間潔大方不落俗套。素凈通透的玄關設置,隨性的生活態度,一副木雕,一盞水墨燈,在現代和傳統中尋找平衡。
金源一品97平裝修案例
榮和大地179平裝修案例
教育路3號單位房125平裝修案例
龍光玖瓏湖200平裝修案例
鳴翠谷300平裝修案例
招商境界215平裝修案例
合景天峻300平裝修案例
廣源大都會190平裝修案例
提交信息,試看
人氣:11093
請必須填寫正確信息,以便我們更好的為您服務!