◎ 廣東省知名商標 ◎ 國家建筑裝飾工程設計專項甲級 ◎ 建筑裝修裝飾工程專業承包壹級
歡迎訪問星藝裝飾南寧公司官網




















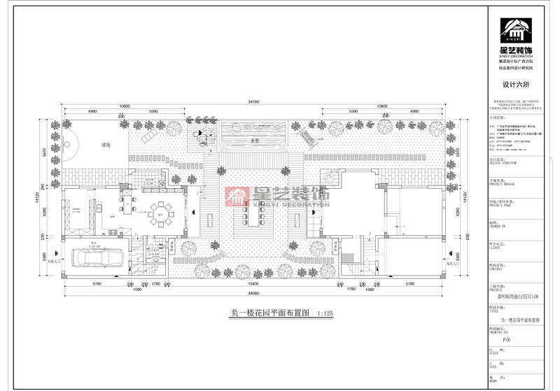
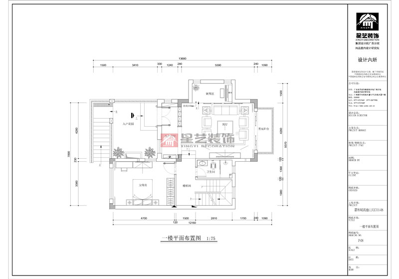
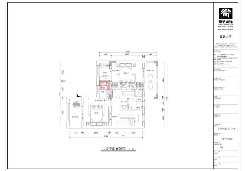
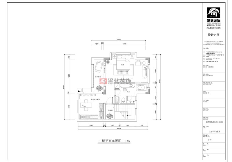
這是房子現在三口之家,準備再要二胎,所以平面上,不僅花園做很用心的球場,室內也很用心的做了開闊的西廚和餐廳,滿足了未來入住時的各種需求。
風格上為了中西結合傳統一點,所有采用了美式風格,傳統的壁燈,圓弧的造型,美式花磚等都會出現。
金源一品97平裝修案例
榮和大地179平裝修案例
教育路3號單位房125平裝修案例
龍光玖瓏湖200平裝修案例
鳴翠谷300平裝修案例
招商境界215平裝修案例
合景天峻300平裝修案例
廣源大都會190平裝修案例
提交信息,試看
人氣:11114
請必須填寫正確信息,以便我們更好的為您服務!