◎ 廣東省知名商標 ◎ 國家建筑裝飾工程設計專項甲級 ◎ 建筑裝修裝飾工程專業承包壹級
歡迎訪問星藝裝飾南寧公司官網








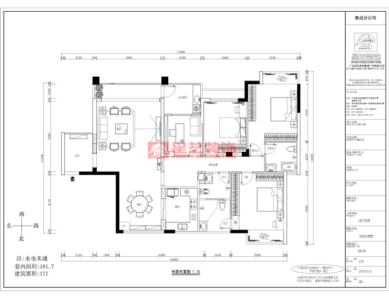
江川悅城180平裝修案例
設計理念:本案例是新中式風格,新中式設計風格運用傳統文化的元素來打造空間的魅力,同時又兼顧現代人對于生活的理解和追求:講究意境,拒絕鋪陳;崇尚自然,規避繁雜;追求雅致,排斥俗套。
金源一品97平裝修案例
榮和大地179平裝修案例
教育路3號單位房125平裝修案例
龍光玖瓏湖200平裝修案例
鳴翠谷300平裝修案例
招商境界215平裝修案例
合景天峻300平裝修案例
廣源大都會190平裝修案例
提交信息,試看
人氣:11114
請必須填寫正確信息,以便我們更好的為您服務!