◎ 廣東省知名商標 ◎ 國家建筑裝飾工程設計專項甲級 ◎ 建筑裝修裝飾工程專業承包壹級
歡迎訪問星藝裝飾南寧公司官網







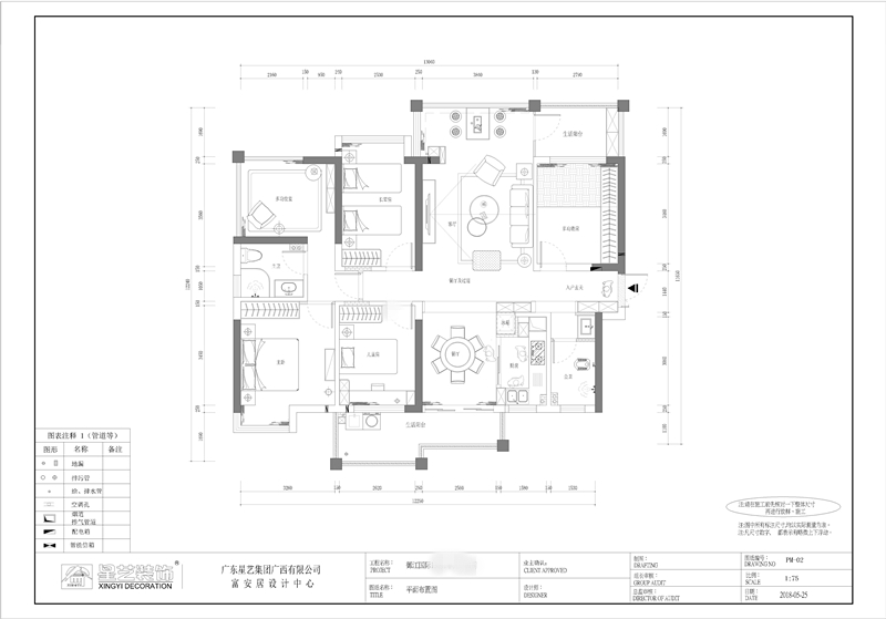
南寧星藝裝飾拜倩設計師專業設計的萬達茂御江國際140平現代簡約裝修案例,此工程項目為五房二廳二衛一廚的多層住宅.室內使用面積為140平. 交通方便,環境優美,業主是商人,夫妻兩人,以后家里常住人口有父母及兩個小朋友。女主人喜歡烹飪,希望新家的設計中餐廳做開封閉式廚房,充分利用每一個空間。本案設計師以簡潔明快的胡桃木風格為主調,全面考慮,在總體布局方面,盡量滿足業主生活上的需求。首先在功能方面,要充分滿足業主的生活要求,鞋柜是功能方面的一個重要元素,因為入戶過道給人的感覺較窄,因此入戶左手邊墻面加銀鏡,從視覺上增加空間感。鞋柜貼著銀鏡做玄關柜,整個空間整齊干凈。客廳是交友娛樂中心,大理石電視背景墻設計,既大方又有感覺,客廳沙發背景墻面色彩為米色硅藻泥,屬暖色調。胡桃木與大理石的結合使得空間大氣又不失時尚,在餐廳和客廳之間的墻面做一個酒柜景點,設計了一個1米5*2米4 到頂的胡桃木酒柜,裝飾整個過道, 廚房衛生間均按現代,舒適,衛生,環保標準進行設計。兒童房突出個性,床后的墻面涂天藍色的多樂士環保涂料,加以燈光配合,充分顯示青春活力。
金源一品97平裝修案例
榮和大地179平裝修案例
教育路3號單位房125平裝修案例
龍光玖瓏湖200平裝修案例
鳴翠谷300平裝修案例
招商境界215平裝修案例
合景天峻300平裝修案例
廣源大都會190平裝修案例
提交信息,試看
| 請輸入您的稱呼 |
| 請輸入您的手機號碼 |
| 請輸入您的樓盤名稱 |
為您提供小區戶型裝修效果圖參考!
人氣:11117