◎ 廣東省知名商標 ◎ 國家建筑裝飾工程設計專項甲級 ◎ 建筑裝修裝飾工程專業承包壹級
歡迎訪問星藝裝飾南寧公司官網










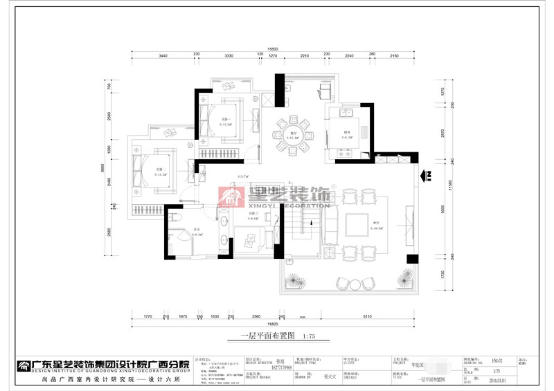
華發國賓一號240平現代中式裝修案例
主要用材:本案業主更注重享受價值,采用實木,天然大理石,不銹鋼,硬包,墻布,乳膠漆,地暖,新風系統,智能系統等
設計說明:本案本案業主更注重享受感覺,用地暖,智能燈光,以及全屋智能化一體的系統,現代的材料打造新中式設計理念,通過采用天然石材以及原木,不銹鋼搭配來塑造。運用不銹鋼以及原木線條來點綴時尚感,木材及天然石材來打造高端大氣的自然的感覺,新中式符號搭配傳統的紅木家私達到時尚的豪華的中式風格,運用硬裝服務于軟轉,軟裝服務于人的設計理念。
金源一品97平裝修案例
榮和大地179平裝修案例
教育路3號單位房125平裝修案例
龍光玖瓏湖200平裝修案例
鳴翠谷300平裝修案例
招商境界215平裝修案例
合景天峻300平裝修案例
廣源大都會190平裝修案例
提交信息,試看
人氣:11084
請必須填寫正確信息,以便我們更好的為您服務!