◎ 廣東省知名商標 ◎ 國家建筑裝飾工程設計專項甲級 ◎ 建筑裝修裝飾工程專業承包壹級
歡迎訪問星藝裝飾南寧公司官網






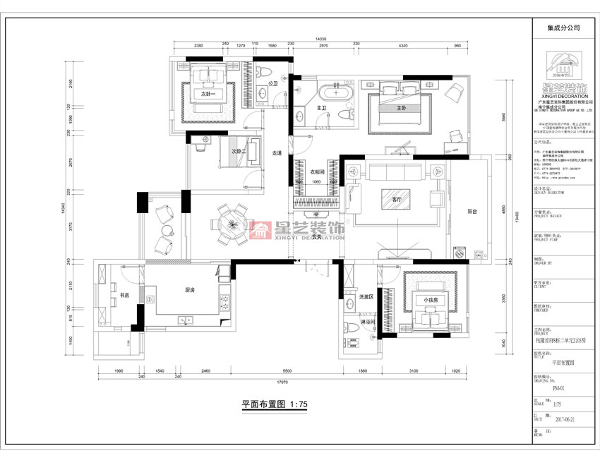
歐式風格是近年來比較流行的裝修風格,歐式風格以高貴典雅等優點吸引了不少歐式迷,隨著歐式風格的盛行歐式風格設計風格也越來越來多,這是一個低調奢華的空間,經典的咖與白只是裝飾的基調,金色才是這個舞臺的主角。繁花似錦的壁紙,奢華的玫瑰金線條,敦厚精美的床,都能帶出古典歐式風格特有的質感。歐式裝修風格是最能彰顯高貴氣質了客廳到臥室,每一處都是那么光鮮照人,浪漫的細節裝飾令人賞心悅目,以一種簡單的手法提取古典歐式風格的精髓,品味不一般哦!
云星錢隆首府178平裝修案例
金源一品97平裝修案例
榮和大地179平裝修案例
教育路3號單位房125平裝修案例
龍光玖瓏湖200平裝修案例
鳴翠谷300平裝修案例
招商境界215平裝修案例
合景天峻300平裝修案例
廣源大都會190平裝修案例
提交信息,試看
人氣:11107
請必須填寫正確信息,以便我們更好的為您服務!