◎ 廣東省知名商標 ◎ 國家建筑裝飾工程設計專項甲級 ◎ 建筑裝修裝飾工程專業承包壹級
歡迎訪問星藝裝飾南寧公司官網







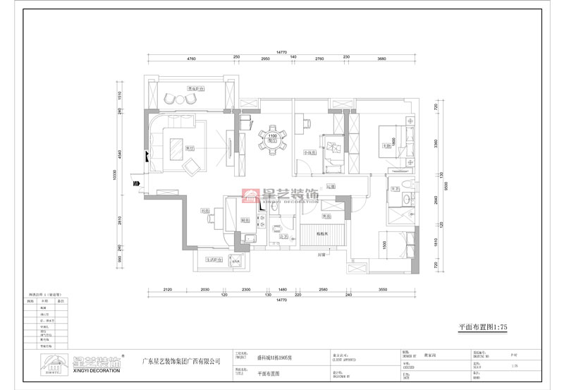
本案位于五像新區地段,是一個環境優雅的高端小區.兩位業主對于紅木家具特別喜歡,所以本案定義為中式。平面上這個戶型的缺點在于餐廳小,廚房小。本案例原來是4房,但是業主一家3口人,所以設計時候,把臥室做成套間的形式,讓睡眠區與衣帽間區域分開。動靜結合。本戶型相對來說餐廳和廚房比較小,根據業主的居住需求,喜歡大氣的餐廳,所以平面上把其中一件房間用來做餐廳。原來的廚房往原餐廳挪動600空分的位置擴大廚房空間。所以本案改造后的廚房面積大了很多,既方便,又能滿足男業主喜歡下廚,好客,大氣的餐廳廚房需求。
盛科城140平裝修案例
金源一品97平裝修案例
榮和大地179平裝修案例
教育路3號單位房125平裝修案例
龍光玖瓏湖200平裝修案例
鳴翠谷300平裝修案例
招商境界215平裝修案例
合景天峻300平裝修案例
廣源大都會190平裝修案例
提交信息,試看
| 請輸入您的稱呼 |
| 請輸入您的手機號碼 |
| 請輸入您的樓盤名稱 |
為您提供小區戶型裝修效果圖參考!
人氣:11106