◎ 廣東省知名商標 ◎ 國家建筑裝飾工程設計專項甲級 ◎ 建筑裝修裝飾工程專業承包壹級
歡迎訪問星藝裝飾南寧公司官網






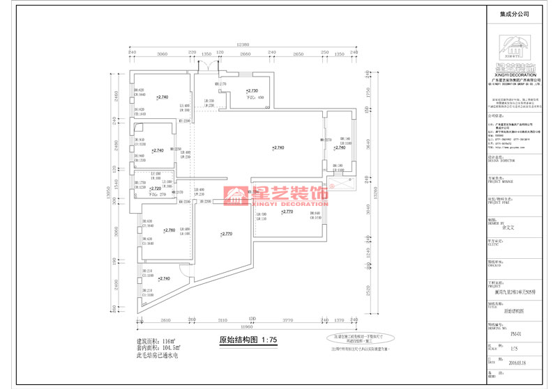
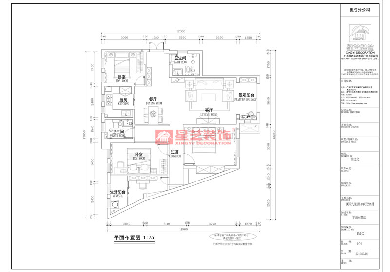
光明瀾灣九里116平裝修設計案例:新中式風格是中國傳統文化與現代時尚元素的融合與碰撞。案例中以自然的木色為主,配以一些中式的元素,給人聯想與想象的空間。適應了中國的蟬意。
金源一品97平裝修案例
榮和大地179平裝修案例
教育路3號單位房125平裝修案例
龍光玖瓏湖200平裝修案例
鳴翠谷300平裝修案例
招商境界215平裝修案例
合景天峻300平裝修案例
廣源大都會190平裝修案例
提交信息,試看
人氣:11105
請必須填寫正確信息,以便我們更好的為您服務!