◎ 廣東省知名商標 ◎ 國家建筑裝飾工程設計專項甲級 ◎ 建筑裝修裝飾工程專業承包壹級
歡迎訪問星藝裝飾南寧公司官網








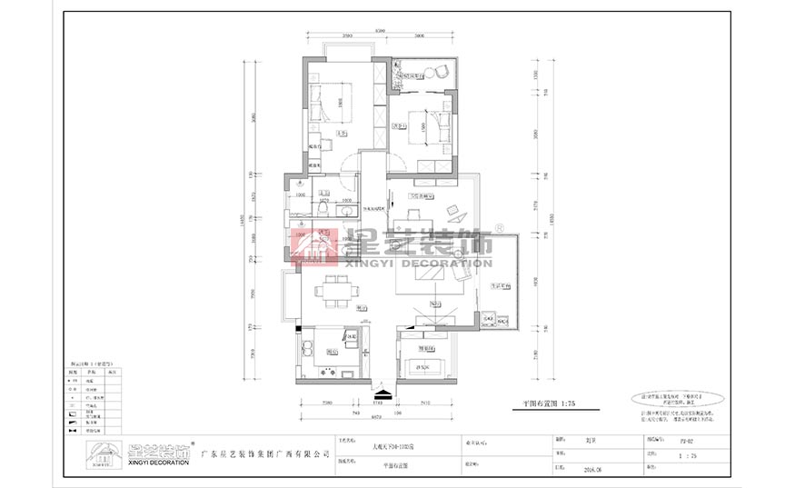
民發大觀天下130平法式浪漫裝修設計案例說明
本案業主是一對極具文藝范的年輕夫婦,特將設計定位為簡潔、直接、貼近自然且極具人文氣息的空間風格,一份寧靜的北歐風情與LOFT文藝范的碰撞,而絕非是蠱惑人心的虛華設計。
整個設計的色調以淺色系為主,材質選取方面也采用了眾多的自然元素,如仿古磚、實木、皮紋、柔軟質樸的棉麻布品等等;另外通過軟裝方面加入一些金屬類材質,使的得極致的淺色空間中又有工業風的復古。溫馨色調與復古黑的相遇、自然與不羈的碰撞,使得空間更具靈性,也使得此空間更貼近主人的情懷,讓整個空間充滿生命力。
金源一品97平裝修案例
榮和大地179平裝修案例
教育路3號單位房125平裝修案例
龍光玖瓏湖200平裝修案例
鳴翠谷300平裝修案例
招商境界215平裝修案例
合景天峻300平裝修案例
廣源大都會190平裝修案例
提交信息,試看
人氣:11093
請必須填寫正確信息,以便我們更好的為您服務!